kein titel vorhanden
kein titel vorhanden
kein titel vorhanden
kein titel vorhanden
kein titel vorhanden
kein titel vorhanden
kein titel vorhanden
kein titel vorhanden

Residenz Fontanestraße

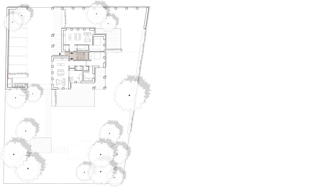
Vorentwurf eines Mehrfamilienhauses in Waren an der Müritz.

Am südlichen Ufer der Binnenmüritz befindet vis à vis des historischen Stadtzentrums von Waren an der Müritz die Fontanestraße. Die Straße ist geprägt von repräsentativen Villenbauten aus dem späten 19. Jahrhundert bis in die 30iger Jahre des 20. Jahrhunderts. Unter größtmöglicher Ausnutzung der Vorgaben aus dem Bebauungsplan wird auf dem 1.795 qm großen Grundstück ein neues Gebäude hinzugefügt, welches sich in Typologie und Gestalt selbstverständlich in den Kontext einfügt. Der elegante zweigeschossige Klinkerbau mit Walmdach erhält eine klassische Fassadengliederung und ermöglicht über eine windmühlenartige Grundrißstruktur eine sinnvolle Orientierung der Wohnungen. Die Anordnung generiert außerdem geschützte private Außenbereiche für die Terrassen und Balkone.

  • Bauherr:privat
  • Fotograf:Visualisierungen © kampsplus