kein titel vorhanden
kein titel vorhanden
kein titel vorhanden
kein titel vorhanden

Kirche Glinde

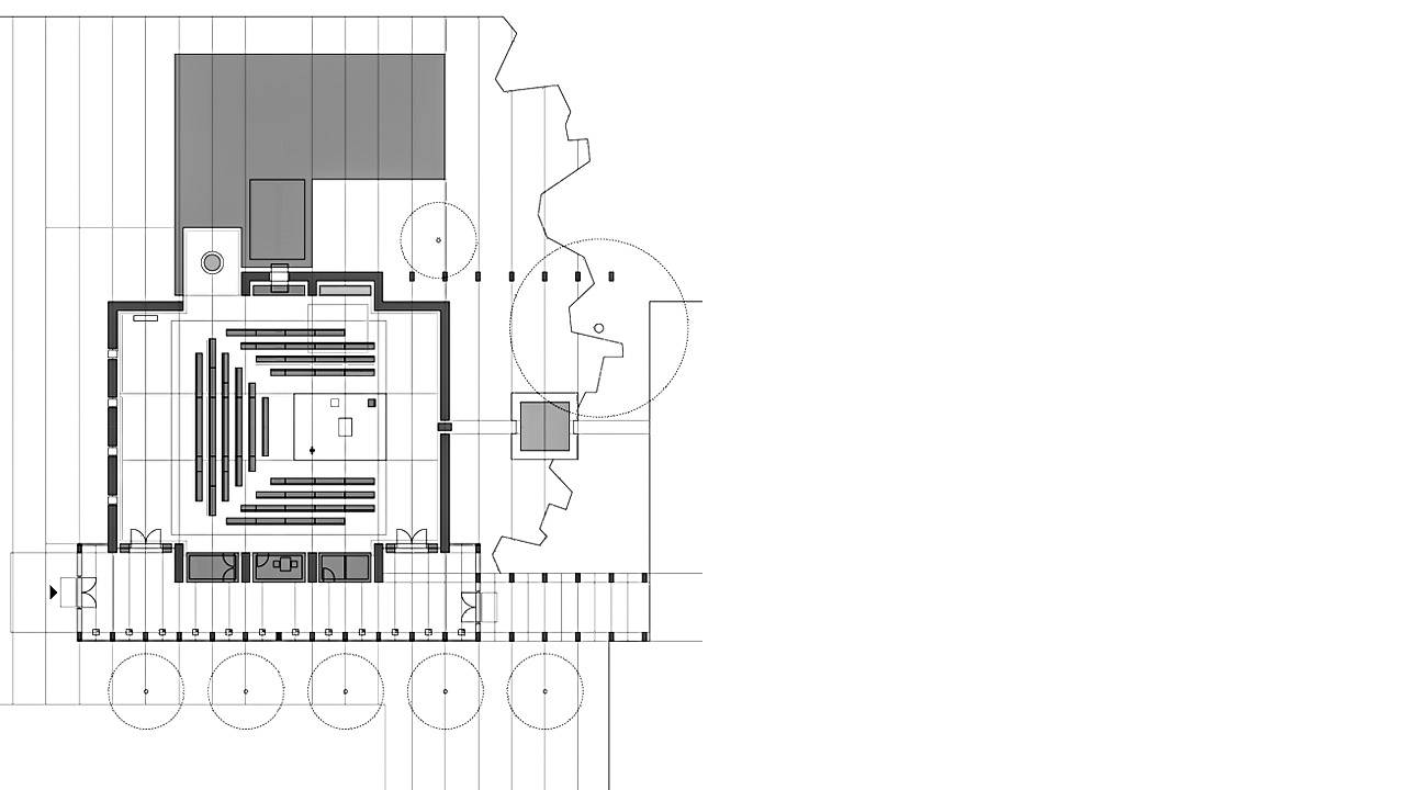
Ausgangspunkt für die Konzeption im Hinblick auf eine größere Kirche sind einerseits die Anforderungen der Gemeinde. Daneben steht gleichrangig die Überlegung, die vertraute Anordnung von Kirche, Turm und Pfarrhaus zu erhalten. Unter bewusster Beibehaltung der Straßenansicht erfolgt die Erweiterung nach Süden zum Kirchengarten. Der nach Westen vorgelagerte Windfangbereich erschließt kreuzgangartig die südlichen Gemeinderäume. Hier entsteht ein Außenraum, der Besucher zum Verweilen einlädt. Der bisherige Altarbereich im Turm bleibt im Inneren in seiner alten Form erlebbar und wird als Taufkapelle genutzt. Der erweiterte Kirchenraum ist für 220 Sitzplätze dimensioniert.

Dieses Projekt ist unter Federführung von Hakki Akyol und Philipp Kamps in der GbR Akyol Gullotta Kamps bearbeitet worden.

  • Baujahr:2003
  • Bauherr:Katholische Kirchengemeinde Zu den heiligen Engeln, Glinde
  • Wettbewerb:1.Preis