kein titel vorhanden
kein titel vorhanden
kein titel vorhanden
kein titel vorhanden
kein titel vorhanden
kein titel vorhanden

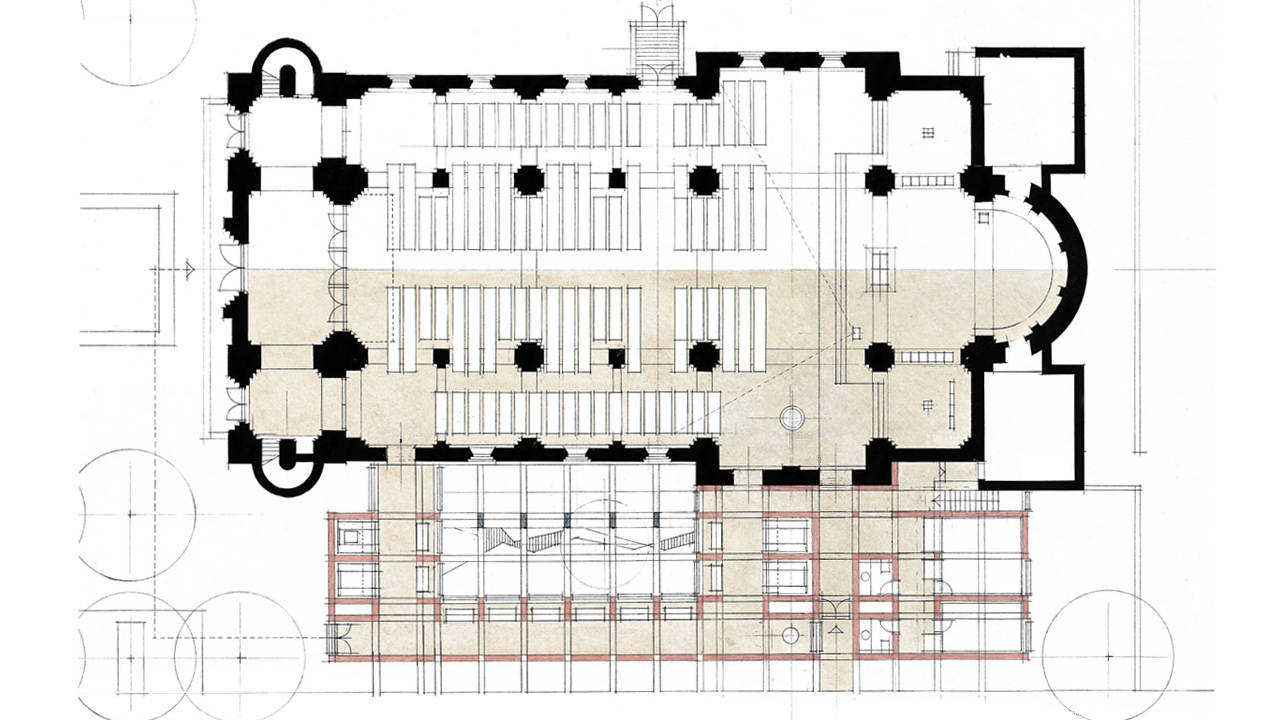
Domkirche St. Marien

Die Notwendigkeit einer räumlichen Erweiterung der Domkirche ergibt sich aus dem neuen Rang der Pfarrkirche. Das Raumprogramm erfordert eine Längsausdehnung der Erweiterung fast über die ganze Südostseite der Domkirche. Dieser Entwurf vermeidet jedoch einen Anbau im Bereich des Langhauses. Dort gibt es nur einen Übergang im ersten Joch, während die beiden weiteren Zugänge in das Querhaus führen. Das bewusste Absetzen vom Langhaus wird durch einen kreuzgangartigen Innenhof erreicht. Ein Außenzugang für die Erweiterung ist im Sakristeibereich vorgesehen.

Dieses Projekt ist unter Federführung von Hakki Akyol und Philipp Kamps in der GbR Akyol Gullotta Kamps bearbeitet worden.

  • Wettbewerb:2000, 2.Preis