kein titel vorhanden
kein titel vorhanden
kein titel vorhanden
kein titel vorhanden
kein titel vorhanden
kein titel vorhanden
kein titel vorhanden
kein titel vorhanden

BMAS Berlin

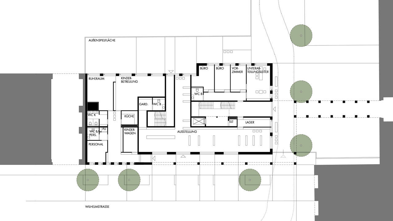
Der entwickelte Baukörper hält auf Grund seiner gliederten Kubatur einen respektvollen Abstand zum bestehenden Hofbeamtenhaus und bildet eine gefasste Platzsituation zur Wiederherstellung des Wilhelmplatzes aus. Durch Aufnahme von Gestaltungelementen und Materialien des historischen Bestandes, bilden Neubau und Bestand ein gemeinsames Ensemble und eine gemeinsame Identität entsteht.

  • Wettbewerb:2013