kein titel vorhanden
kein titel vorhanden
kein titel vorhanden
kein titel vorhanden
kein titel vorhanden

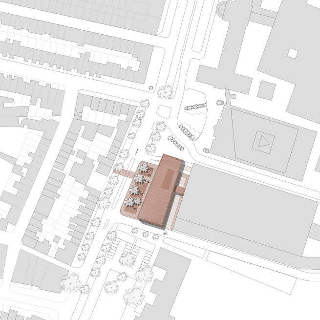
Ärztehaus Bremen

Als Passepartout der denkmalgeschützten Klinikgebäude und als markantes Eingangsbauwerk für das Klinikgelände stellt sich das neue Ärztehaus selbstbewusst in den Stadtraum. Durch die plastisch gestaltete Ziegelfassade in Kombination mit Werksteinelementen stellt der Neubau eine Referenz an die Identität des Ortes und die Stadt Bremen dar.

  • Wettbewerb:2017, 2. Preis